NEW

【宮崎店】恒久南3丁目右中平屋建モデル

見学会&販売会開催中

宮崎市エリア

【宮崎店】恒久南3丁目右中平屋建モデル
見学予約

宮崎店

0120-0404-80

当日のご予約はお電話にて
お問い合わせください
平日のご予約も承っております

【生活利便がそろった好立地に、人気の平屋建てがオープン】
小学校まで徒歩8分、中学校も徒歩15分と通学に安心。
さらに、公園・スーパー・コンビニがすぐ近くにあり、子育てにもぴったりな住環境!

✨注目ポイントはこちら✨
✅ ディープネイビー×ベージュの外観
深みのあるネイビーに、やさしいベージュが映える、上品で洗練されたナチュラルモダンデザイン。
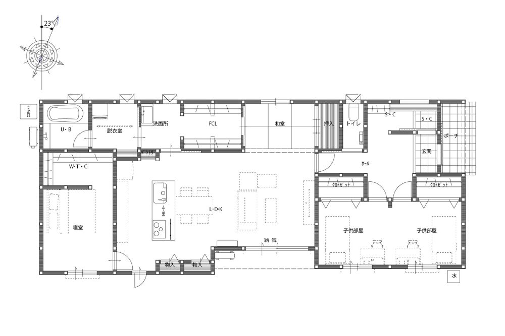
✅ 開放感あふれるアイランドキッチン
家族と会話を楽しみながら調理ができる、人気のアイランドスタイル。
✅ 家事ラク動線|キッチン〜脱衣室まで直線アクセス
料理から洗濯までの動線がスムーズで、毎日の家事が効率的に。
✅ 脱衣室→洗面所→ファミリークローゼットが一直線
洗う・干す・しまうがひと続き!朝の支度や帰宅後の片付けもストレスフリーに。
✅ 子ども部屋は将来2部屋に分けられる設計
お子さまの成長やライフスタイルの変化にも柔軟に対応できます。

🏠 ただいま見学会開催中!
実際の空間を体感できるチャンスです。ぜひお気軽にご来場ください!

会場地図

「拡大地図を表示」をクリックするとGoogle Mapが開き経路案内ができます。

物件概要

● 所在地

宮崎県宮崎市恒久南3丁目14-25

(カーナビ住所:宮崎県宮崎市恒久南3丁目13 八重川街区公園西側付近)

● 構造
木造ガルバリウム鋼板瓦葺平屋建
● 間取り
4LDK
● 敷地面積
255.95㎡(77.42坪)
● 延床面積
112.00㎡(33.88坪)
● UA値
● 用途地域
第一種低層住居専用地域
● 駐車場
3台
● 学校区
宮崎市立恒久小学校(赤江小学校も選択可)、赤江中学校(赤江東中学校も選択可)
● 完成日
2025年6月完成
● 取引態様
売主(仲介手数料不要)

こちらのモデルハウスは販売中です

販売価格3,535万円(税込)

土地・建物・照明・カーテン・外構・エアコン・家具込み

月々の支払い例

75,608

ボーナス月の支払い
(年2回)

92,908

借入金額

3,535万円

支払い年数

40年

金利

変動金利1.10%

※別途、諸費用がかかります

見学予約

宮崎店

0120-0404-80

当日のご予約はお電話にて
お問い合わせください
平日のご予約も承っております