NEW
【宮崎店】吉村町中原南道路左2階建モデル
見学会&販売会開催中
宮崎市エリア
ドラッグストアコスモス 曽師店まで徒歩3分!
小学校も徒歩10分圏内。買物・医療・保育などが揃い、子育てファミリーに嬉しい安心快適なエリアにモデルハウスがついにオープン!

✨注目ポイントはこちら✨
✅ 土間仕様シューズクローク
ベビーカーやアウトドア用品も収納でき、玄関まわりがいつもスッキリ
✅ 対面キッチンからリビング・ダイニング・和室まで見渡せる
料理をしながら子どもや家族の様子をチェックできて安心
✅ 廊下に独立洗面台設置
朝の混雑時でも洗面所・バスルームの順番待ちを解消できて便利
✅ 各部屋収納とは別にファミリークローゼット完備
各部屋収納とは別に、家族の衣類や季節物をまとめて管理できる
![]()
収納も動線も工夫された、家族みんなが快適に暮らせる2階建てとなっています♪
🏠 見学会開催!
実際に見て、触れて、暮らしのイメージをふくらませてみませんか?
小学校も徒歩10分圏内。買物・医療・保育などが揃い、子育てファミリーに嬉しい安心快適なエリアにモデルハウスがついにオープン!

✨注目ポイントはこちら✨
✅ 土間仕様シューズクローク
ベビーカーやアウトドア用品も収納でき、玄関まわりがいつもスッキリ
✅ 対面キッチンからリビング・ダイニング・和室まで見渡せる
料理をしながら子どもや家族の様子をチェックできて安心
✅ 廊下に独立洗面台設置
朝の混雑時でも洗面所・バスルームの順番待ちを解消できて便利
✅ 各部屋収納とは別にファミリークローゼット完備
各部屋収納とは別に、家族の衣類や季節物をまとめて管理できる
収納も動線も工夫された、家族みんなが快適に暮らせる2階建てとなっています♪
🏠 見学会開催!
実際に見て、触れて、暮らしのイメージをふくらませてみませんか?
会場地図
「拡大地図を表示」をクリックするとGoogle Mapが開き経路案内ができます。
物件概要
- ● 所在地
-
宮崎県宮崎市吉村町中原甲2692-8
(カーナビ住所:宮崎県宮崎市吉村町中原甲2693-6付近)
- ● 構造
- 木造ガルバリウム鋼板瓦棒葺2階建
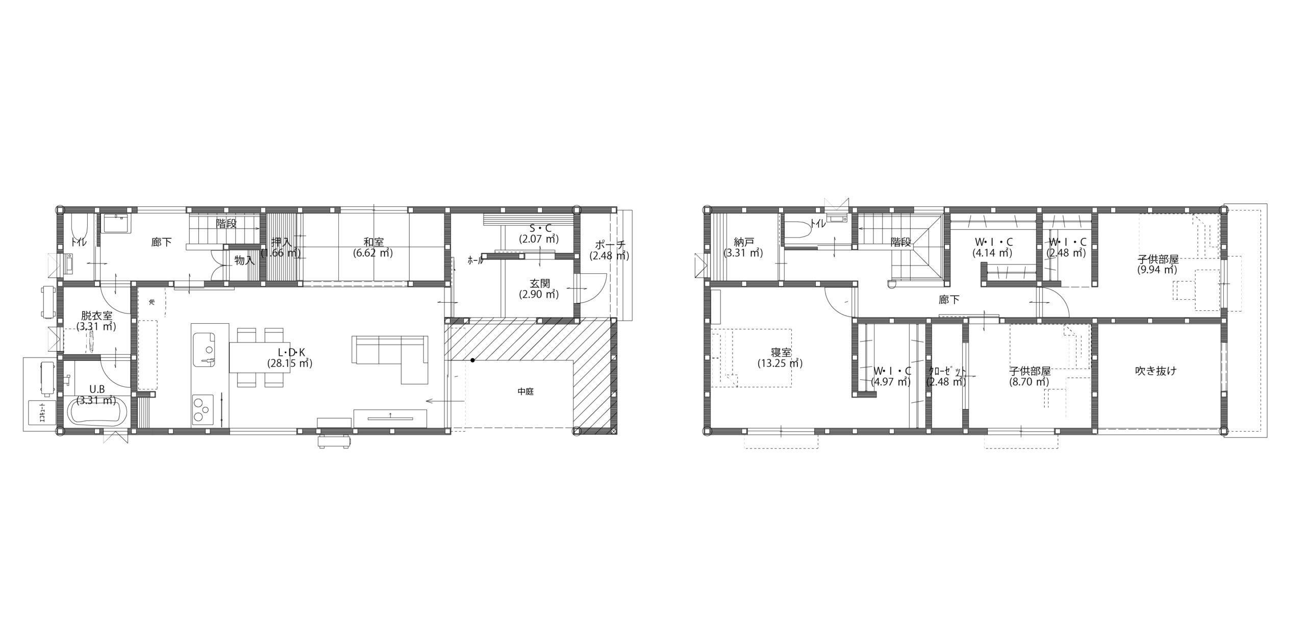
- ● 間取り
- 4LDK
- ● 敷地面積
- 181.93㎡(55.03坪)
- ● 延床面積
- 127.31㎡(38.51坪)
- ● UA値
- 0.54
- ● 用途地域
- 第一種低層住居専用地域
- ● 駐車場
- 3台
- ● 学校区
- 宮崎市立港小学校(潮見小学校も選択可)、檍中学校(宮崎中学校も選択可能)
- ● 完成日
- 2025年10月完成
- ● 取引態様
- 売主(仲介手数料不要)
こちらのモデルハウスは販売中です
販売価格3,300万円(税込)
土地・建物・照明・カーテン・外構・エアコン・家具込み
月々の支払い例
69,554円
ボーナス月の支払い
(年2回)
92,908円
借入金額
3,300万円
支払い年数
40年
金利
変動金利1.10%
※別途、諸費用がかかります