【小林店】十三塚北東D平屋建モデル
販売価格
2,565万円(税込)
月々のお支払い例
68,558円
ボーナス月の支払額:―円(税込)
借入金額:2,565万円(税込)
支払い年数:40年
金利:変動金利1.30%
※別途、諸費用がかかります
PRポイント
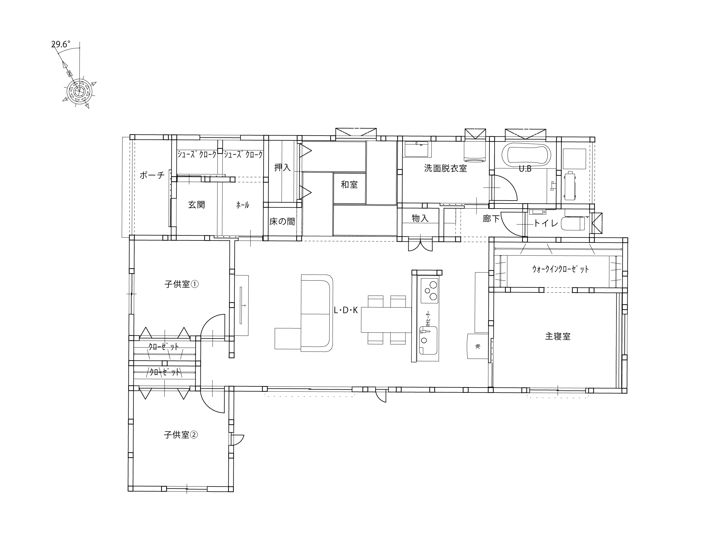
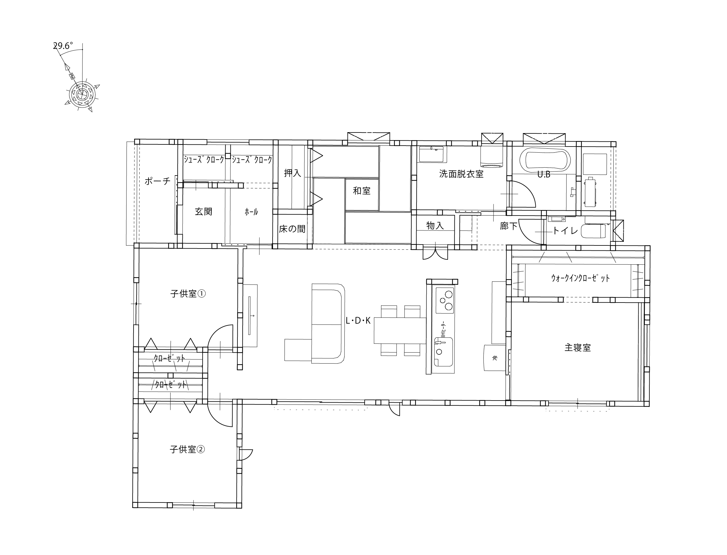
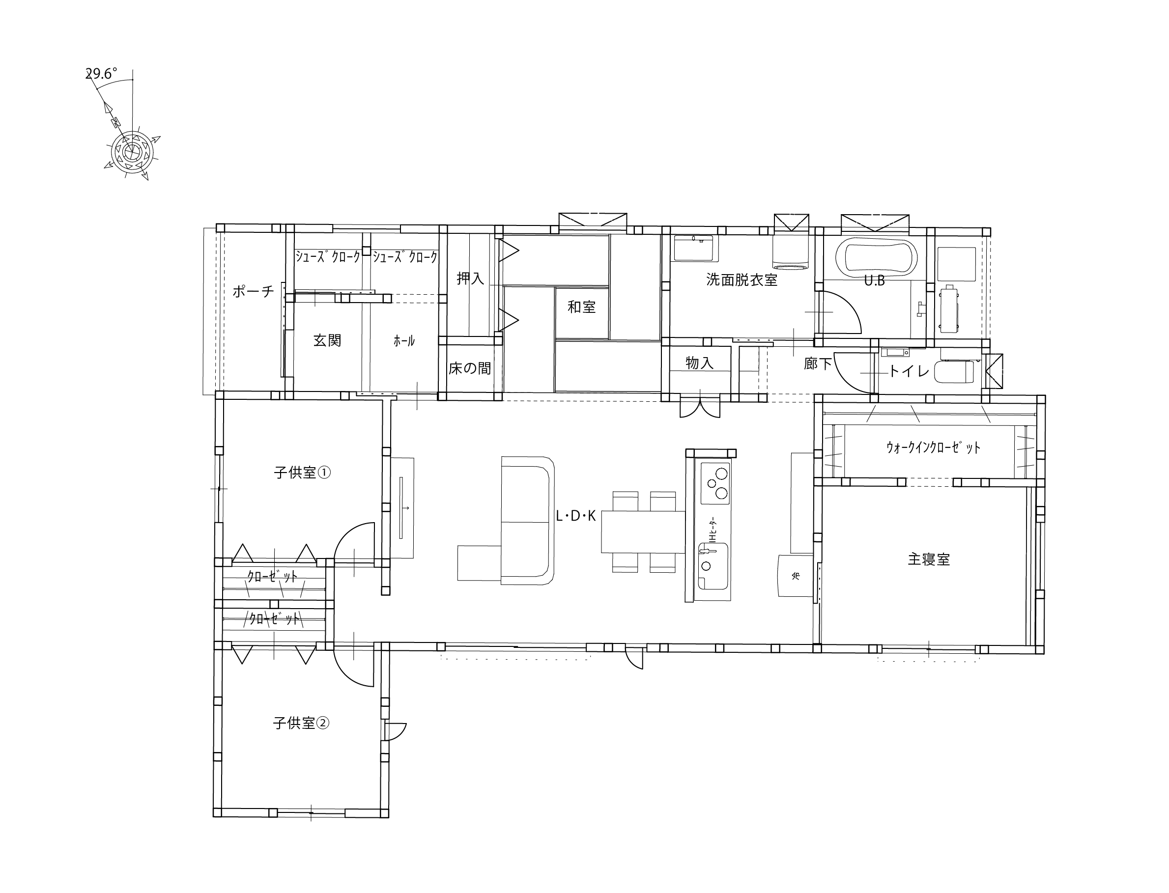
暮らしやすさ抜群!理想の平屋が完成しました!
小中高校が近く、小林総合運動公園にも隣接した便利で魅力的な立地の平屋住宅です。家族の暮らしを豊かにするポイントが盛りだくさん!
✨ 注目ポイント ✨
■ 開放感のあるLDK設計
家族が自然に集まる広々としたLDK。アクセントとなる折り下げ天井や大きな窓が明るく、心地よい空間を演出します。
■ 家事ラク!優れた水回り動線
キッチンから洗面、浴室までスムーズな動線設計で毎日の家事負担を軽減。
■ 収納たっぷり各部屋完備
各部屋に収納スペースを完備し、スッキリとした空間を維持できます。
■ アイランドキッチンから見守り設計
キッチンに立ちながら、リビングやダイニング、小上がり和室までしっかり視界に入るレイアウトで、家族の時間をより安心・快適に。
静かな環境と利便性を兼ね備えた理想の平屋住宅で、快適な暮らしを始めませんか?
詳細や見学希望についてはお気軽にお問い合わせください!
- 所在地
- 宮崎県小林市南西方字板橋1875-19
- 学校区
- 小林市立南小学校、小林中学校
- 構造
- 木造軸組工法(平屋建て)
- 間取り
- 4LDK
- 敷地面積
- 324.24㎡(98.08坪)
- 延床面積
- 110.87㎡(33.53坪)
- 駐車場
- 3台
- 建築年月
- 2024年9月完成
- 交通
- ―
- 設備
- 土地・建物・照明・カーテン・外構・エアコン・家具込み
- 地目
- ―
- 用途地域
- 用途地域の指定なし
- 都市計画
- ―
- 建蔽率
- 70%
- 容積率
- 200%
- 総区画数
- ―
- 販売区画
- ―
- 接道
- 14.103
- 取引態様
- 売主(仲介手数料不要)
- 備考
- ―











