NEW
【日向店】曽根町2丁目平屋建モデル
建築中
日向・門川・都農エリア

小学校まで徒歩6分!
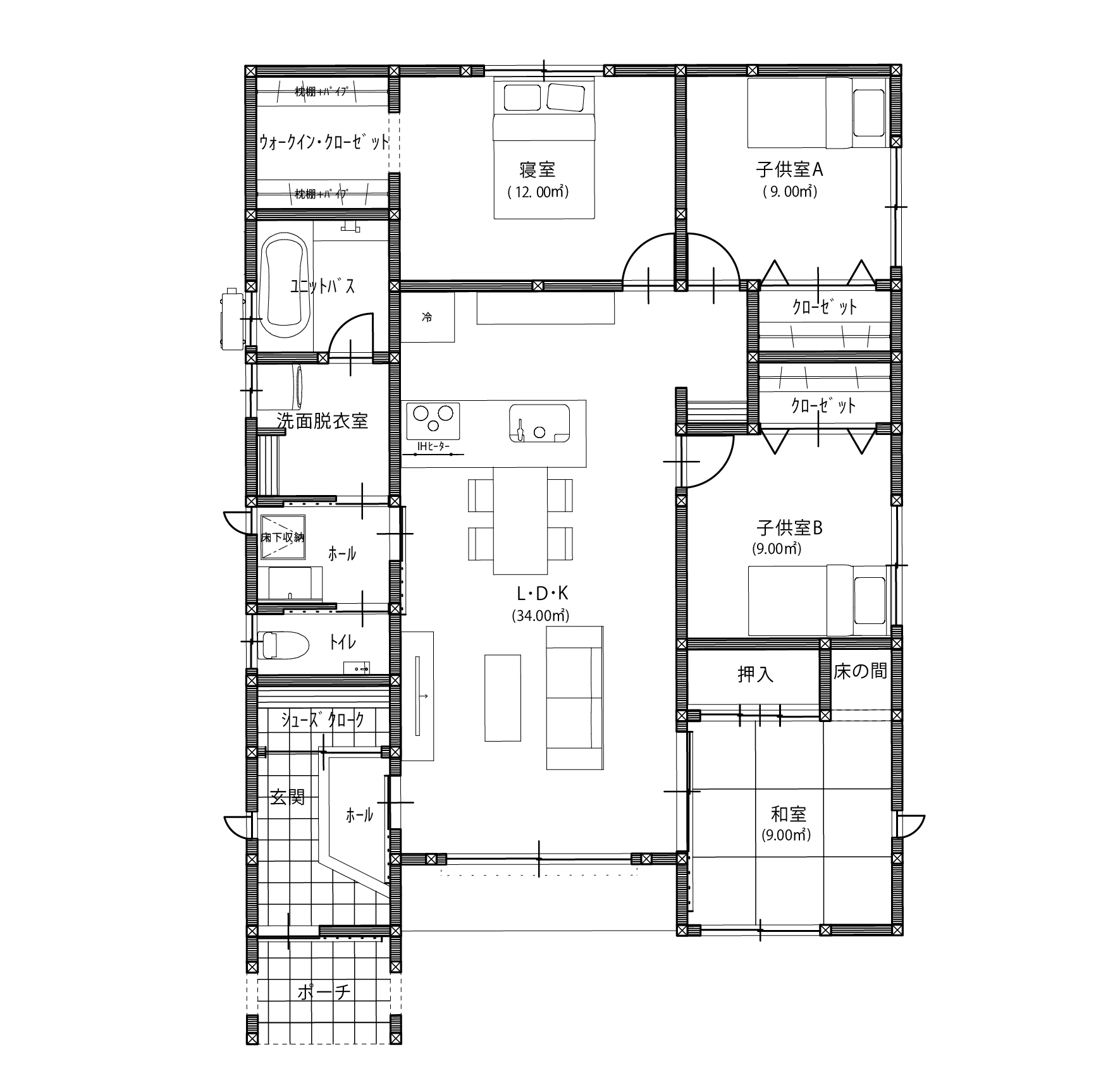
スーパーやホームセンターなど生活施設が近いため利便性が高い曽根町2丁目に平屋建てモデルハウスを建築中!

🏡 注目ポイント🏡
🔸 土間仕様の大容量シューズクローク
ベビーカーやアウトドア用品もすっきり収納!玄関まわりがいつもキレイに。
🔸 20帖の広々LDK&対面キッチン
家族が自然と集まる開放的なリビング。料理しながら会話も弾む♪
🔸 洗面室と脱衣室が分かれた設計
朝の支度やお風呂タイムも混雑知らず。プライバシーも◎
🔸 主寝室はゆったり7.2帖+ウォークインクローゼット
お洋服もたっぷり収納OK。落ち着きあるプライベート空間。
ゆとりある空間設計で、家族がのびのび暮らせる平屋住宅となっています♪
詳しくは日向店までお問い合わせください^^
スーパーやホームセンターなど生活施設が近いため利便性が高い曽根町2丁目に平屋建てモデルハウスを建築中!

🏡 注目ポイント🏡
🔸 土間仕様の大容量シューズクローク
ベビーカーやアウトドア用品もすっきり収納!玄関まわりがいつもキレイに。
🔸 20帖の広々LDK&対面キッチン
家族が自然と集まる開放的なリビング。料理しながら会話も弾む♪
🔸 洗面室と脱衣室が分かれた設計
朝の支度やお風呂タイムも混雑知らず。プライバシーも◎
🔸 主寝室はゆったり7.2帖+ウォークインクローゼット
お洋服もたっぷり収納OK。落ち着きあるプライベート空間。
ゆとりある空間設計で、家族がのびのび暮らせる平屋住宅となっています♪
詳しくは日向店までお問い合わせください^^
会場地図
「拡大地図を表示」をクリックするとGoogle Mapが開き経路案内ができます。
物件概要
- ● 所在地
-
宮崎県日向市曽根町2丁目81-1
(カーナビ住所:宮崎県日向市曽根町2丁目81付近)
- ● 構造
- 木造ガルバリウム鋼板葺平屋建
- ● 間取り
- 4LDK
- ● 敷地面積
- 231.00㎡(69.87坪)
- ● 延床面積
- 104.00㎡(31.46坪)
- ● UA値
- ―
- ● 用途地域
- 第一種中高層住居専用地域
- ● 駐車場
- 4台
- ● 学校区
- 日向市立日知屋東小学校・富島中学校
- ● 完成日
- 2025年9月完成
- ● 取引態様
- 売主(仲介手数料不要)
こちらのモデルハウスは販売中です
販売価格2,890万円(税込)
土地・建物・照明・カーテン・外構・エアコン・家具込み
月々の支払い例
58,992円
ボーナス月の支払い
(年2回)
92,908円
借入金額
2,890万円
支払い年数
40年
金利
変動金利1.10%
※別途、諸費用がかかります