【日向店】財光寺松原2号2階建モデル
販売価格
2,935万円(税込)
月々のお支払い例
62,410円
ボーナス月の支払額:96,420円(税込)
借入金額:2,935万円(税込)
支払い年数:40年
金利:変動金利1.30%
※別途、諸費用がかかります
PRポイント
財光寺駅まで車で3分!
小学校まで徒歩12分、中学校まで徒歩11分と、通勤・通学にうれしい便利な立地。
病院やスーパーなどの生活施設も近くに揃っているので、毎日の暮らしもスムーズで安心です🏡🌿
✨注目ポイント✨
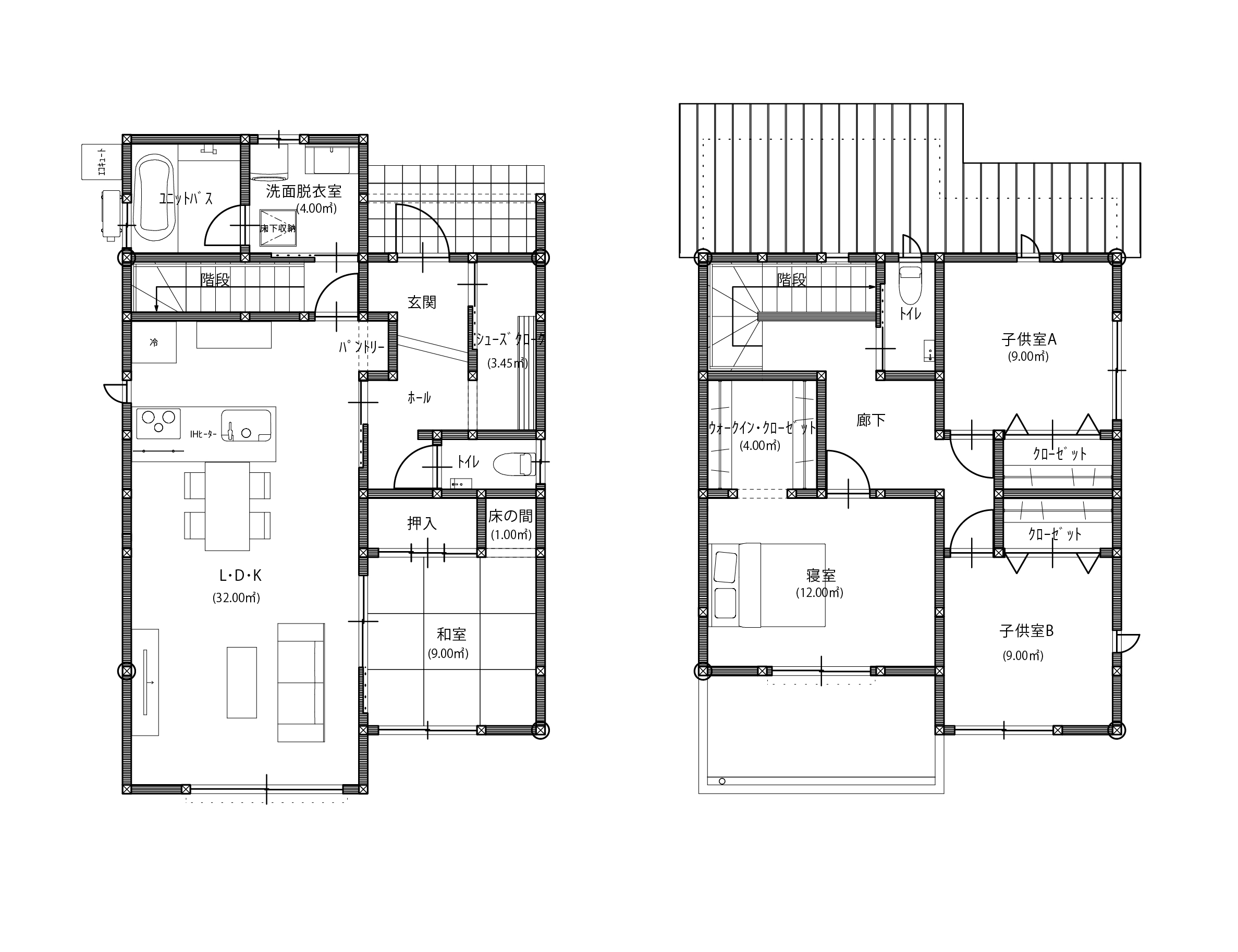
✅ リビング全体を見渡せる対面キッチン
家事をしながら家族の様子を見守れる安心設計。自然と会話が生まれる心地よい空間です。
✅ キッチンから廊下に出るとすぐ洗面脱衣室へ
料理と洗濯の行き来がスムーズになり、毎日の家事効率がぐっとアップ!
✅ リビングに隣接した和室
お昼寝・遊び場・客間など、多目的に使える便利な一室。
✅ 各居室にウォークインクローゼットまたはクローゼットを完備
家族それぞれで使える収納で、衣類や季節物もスッキリ整理。おうち全体をいつでも整った状態に保てます。
モデルハウス見学会を開催!
実際の間取りや暮らしのイメージを体感できるチャンスです。
ぜひお気軽にお問い合わせ・ご来場ください^^
- 所在地
- 宮崎県日向市大字財光寺字中ノ丸4623-6(122街区 3-2画地)
- 学校区
- 日向市財光寺小学校・財光寺中学校
- 構造
- 木造軸組工法(2階建て)
- 間取り
- 4LDK
- 敷地面積
- 240.58㎡(72.77坪)
- 延床面積
- 120.00㎡(36.30坪)
- 駐車場
- 3台
- 建築年月
- 2026年1月完成
- 交通
- ―
- 設備
- 土地・建物・照明・カーテン・外構・エアコン・家具込み
- 地目
- ―
- 用途地域
- 第一種低層住居専用地域
- 都市計画
- 市街化区域
- 建蔽率
- 50%
- 容積率
- 100%
- 総区画数
- ―
- 販売区画
- ―
- 接道
- 9.361m
- 取引態様
- 売主(仲介手数料不要)
- 備考
- ―









