【延岡市】長浜町1丁目中2階建モデル
販売価格
2,765万円(税込)
月々のお支払い例
57,866円
ボーナス月の支払額:96,420円(税込)
借入金額:2,765万円(税込)
支払い年数:40年
金利:変動金利1.30%
※別途、諸費用がかかります
PRポイント
延岡市医師会病院まで車でわずか2分!
10号線にも近く、飲食店や病院など生活に便利な施設が充実した好立地に、高断熱仕様の2階建てモデルハウスオープン!
✨ 見どころポイント
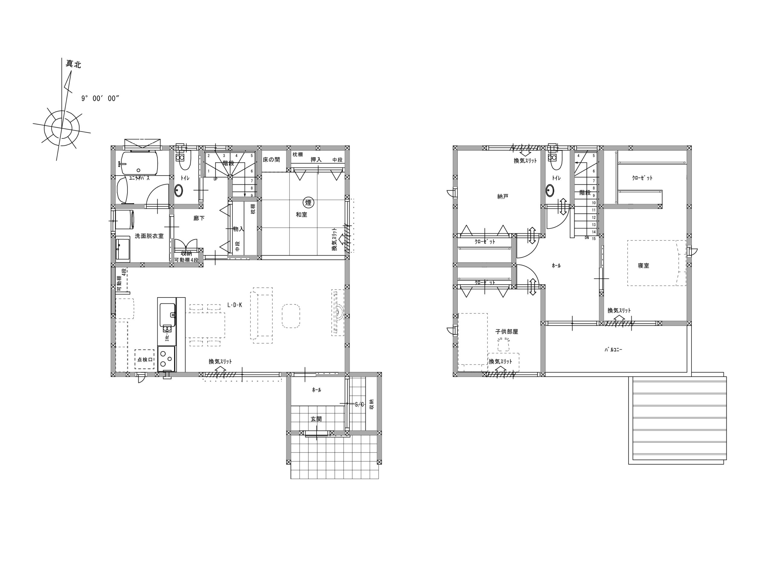
・土間仕様のシューズクロークは靴だけでなく、ベビーカーなどの大型アイテムも収納可能!
・キッチンからリビングと小上がり和室を見渡せるので、家事をしながら家族の様子を見守れます
・2階の廊下と寝室からアクセスできる広々としたバルコニーで、開放感のある空間
・各部屋の収納スペースに加え、廊下収納も!すっきりとした暮らしを実現
・2階建て設計で、家族の時間とプライベートな空間をしっかり確保できます
ミラバス・ミラブルZEROデモ機設置中!
▼ミラバス・ミラブルZEROとは?▼
🏠 理想の暮らしを叶える住まい!
詳しくは延岡店までお気軽にお問い合わせください♪
- 所在地
- 宮崎県延岡市長浜町1丁目1890-5
- 学校区
- 延岡市立東小学校・延岡中学校
- 構造
- 木造軸組工法(2階建て)
- 間取り
- 4LDK
- 敷地面積
- 190.74㎡(57.69坪)
- 延床面積
- 121.45㎡(36.73坪)
- 駐車場
- 3台
- 建築年月
- 2025年12月完成
- 交通
- ―
- 設備
- 土地・建物・照明・カーテン・外構・エアコン・家具込み
- 地目
- ―
- 用途地域
- 第一種住居地域
- 都市計画
- 市街化区域
- 建蔽率
- 60%
- 容積率
- 160%
- 総区画数
- ―
- 販売区画
- ―
- 接道
- 12.286m
- 取引態様
- 売主(仲介手数料不要)
- 備考
- ―





